清镇市石墨烯电地暖67.92平米电热膜地暖安装电话:18137195000;

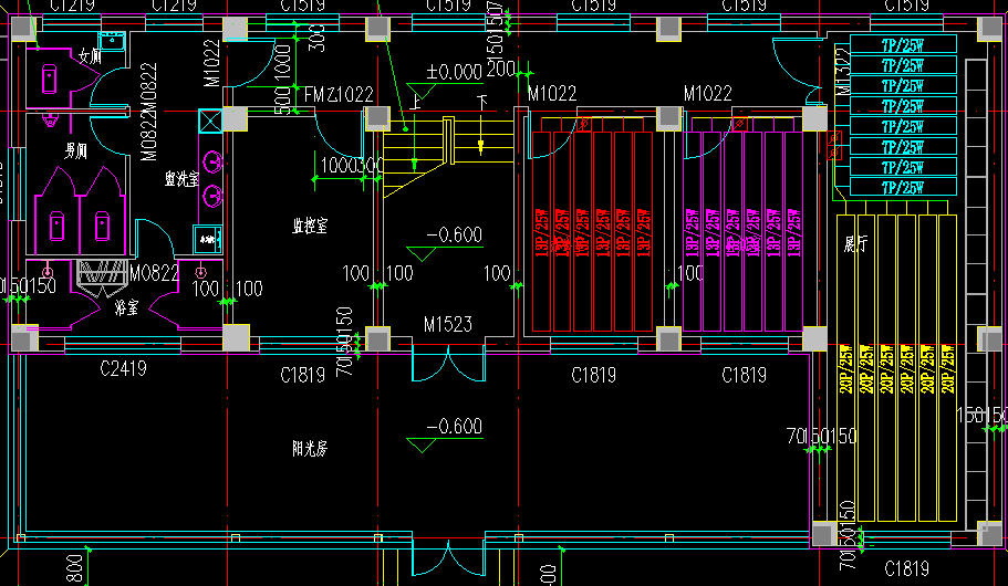
清镇市石墨烯电地暖67.92平米电热膜地暖安装电话:18137195000;清镇市石墨烯墙暖画价格多少钱?清镇市石墨烯电地暖安装,清镇市石墨烯电热地毯销售;房间尺寸3.1*4.8米*2,3.6*11.04米,13P*12/7P*8/20P*6/390W,1400W,3000W;阳光房、浴室、卫生间、展示大厅;木里藏族自治县石墨烯电地暖 贵州石墨烯电地暖 贵阳市石墨烯电地暖 开阳县石墨烯电地暖 息烽县石墨烯电地暖 修文县石墨烯电地暖 清镇市石墨烯电地暖




