永嘉县石墨烯电地暖395.88平米商业用房增加暖极人地暖供暖系统;

暖极人石墨烯电地暖厂家价格电话:18137195000;永嘉县石墨烯墙暖画厂家价格批发销售;
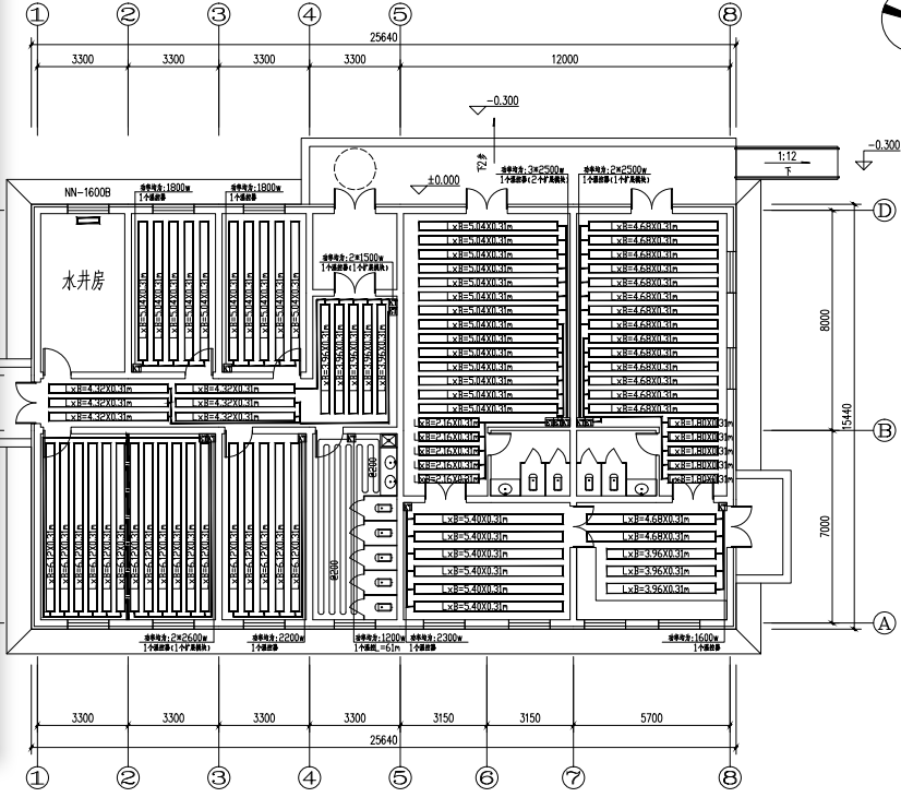
永嘉县石墨烯电地暖392.79商业用房增加暖极人地暖供暖系统;整体尺寸25.64*15.44米,单间3.3*6米,大商铺6*8米,小商铺7*5.7米,过道2*9.9米;温州石墨烯电地暖 瑞安市石墨烯电地暖 乐清市石墨烯电地暖 龙港市石墨烯电地暖 永嘉县石墨烯电地暖 平阳县石墨烯电地暖 苍南县石墨烯电地暖 文成县石墨烯电地暖 泰顺县石墨烯电地暖




