嫩江市石墨烯电地暖54.75平米自建平房小院铺装暖极人石墨烯电地暖供暖系统;

暖极人石墨烯电地暖厂家价格:18137195000;嫩江市石墨烯墙暖画批发电话;嫩江市石墨烯电地暖品牌厂家供货安装;
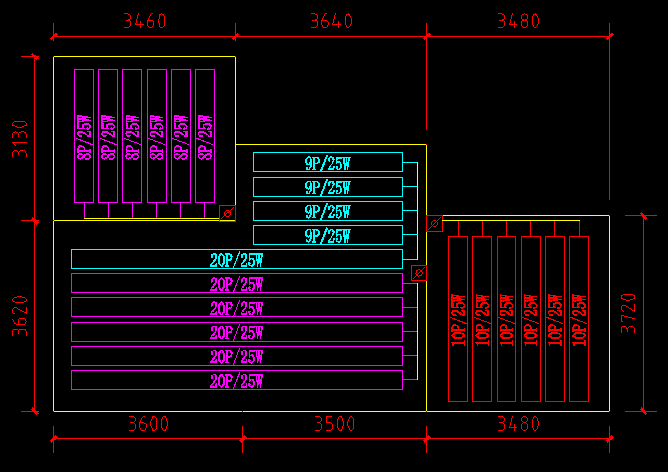
嫩江市石墨烯电地暖54.75平米自建平房小院铺装暖极人石墨烯电地暖供暖系统;平房客厅7.1*3.6米,主卧3.48*3.72米,北卧3.46*3.13米;黑河市石墨烯电地暖 北安市石墨烯电地暖 五大连池市石墨烯电地暖 嫩江市石墨烯电地暖 逊克县石墨烯电地暖 孙吴县石墨烯电地暖

暖极人石墨烯电地暖厂家价格:18137195000;嫩江市石墨烯墙暖画批发电话;嫩江市石墨烯电地暖品牌厂家供货安装;
嫩江市石墨烯电地暖54.75平米自建平房小院铺装暖极人石墨烯电地暖供暖系统;平房客厅7.1*3.6米,主卧3.48*3.72米,北卧3.46*3.13米;黑河市石墨烯电地暖 北安市石墨烯电地暖 五大连池市石墨烯电地暖 嫩江市石墨烯电地暖 逊克县石墨烯电地暖 孙吴县石墨烯电地暖