盂县石墨烯电地暖72.86平米公寓房铺装暖极人石墨烯电热膜地暖系统;

暖极人石墨烯电地暖厂家价格:18137195000;盂县石墨烯墙暖画批发价格,盂县电地暖安装价格多少钱一平米?
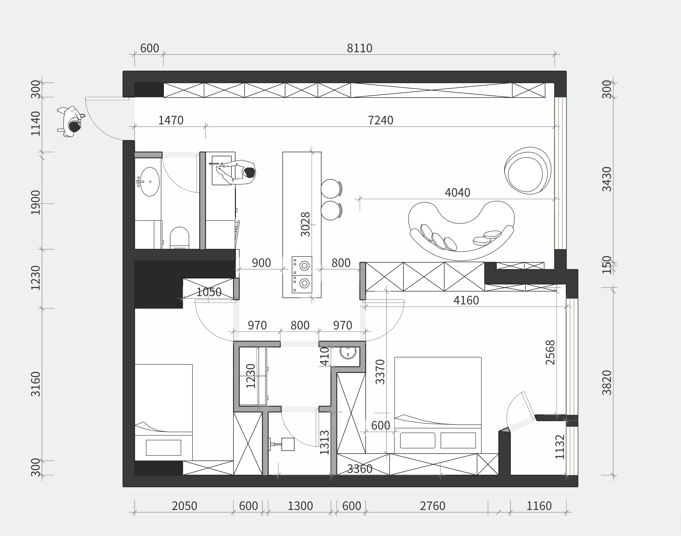
盂县石墨烯电地暖72.86平米公寓房铺装暖极人石墨烯电热膜地暖系统;房间尺寸:8.7米*8.1米开间进深,客厅7.2*3.5米,主卧室3.8*5.1米;阳泉石墨烯电地暖 盂县石墨烯电地暖 平定县石墨烯电地暖

暖极人石墨烯电地暖厂家价格:18137195000;盂县石墨烯墙暖画批发价格,盂县电地暖安装价格多少钱一平米?
盂县石墨烯电地暖72.86平米公寓房铺装暖极人石墨烯电热膜地暖系统;房间尺寸:8.7米*8.1米开间进深,客厅7.2*3.5米,主卧室3.8*5.1米;阳泉石墨烯电地暖 盂县石墨烯电地暖 平定县石墨烯电地暖